Bilocale in vendita

Portici, Via Paladino - Portici Corso Garibaldi
€ 130.000
2 locali 2 locali
67 Mq 67 Mq
1 bagno 1 bagno

Bilocale in vendita

Portici, Via Paladino - Portici Corso Garibaldi

Descrizione annuncio

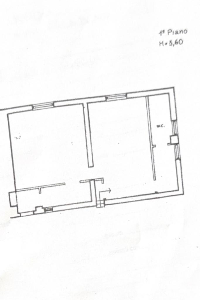
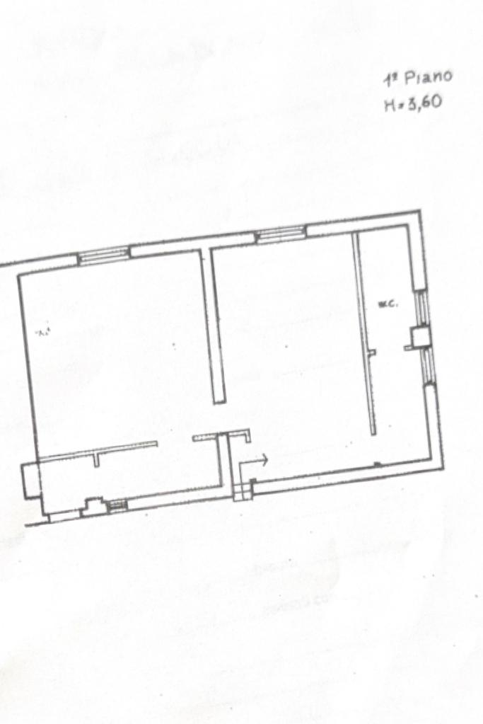
In contesto riservato ma perfettamente servito, proponiamo in vendita un accogliente bilocale in buone condizioni abitative,posto al primo piano di un piccolo fabbricato senza ascensore, ma servito da una scala agevole, ideale per chi desidera vivere in centro senza rinunciare alla comodità.

L’appartamento, curato e luminoso, si compone di: Ingresso su accogliente zona giorno e cucina abitabile, perfetta per vivere e ricevere con praticità , Camera matrimoniale ampia , con spazio sufficiente per armadi e arredi su misura , Bagno finestrato completo di box doccia ed infine uno Spazio multifunzionale che può essere destinato a cabina armadio, ripostiglio o servizio aggiuntivo.

Gli ambienti serviti da finestre,sono caratterizzati da un’atmosfera calda e accogliente, ideali per giovani coppie, single o come investimento per locazioni a breve e lungo termine.

Punti di forza della proprietà:

Posizione strategica: a pochi passi da Corso Garibaldi e Via Diaz, cuore pulsante della città, con tutti i principali servizi – negozi, bar, farmacie, mezzi pubblici – raggiungibili comodamente a piedi;

Contesto tranquillo e riservato, pur essendo nel centro abitato;

Ottimo rapporto qualità/prezzo e basse spese di gestione.

L’immobile rappresenta la soluzione ideale per chi cerca praticità, comfort e posizione: perfetto come prima casa, come punto d’appoggio in città, o come opportunità di investimento per affitti tradizionali o turistici.

Non perdere l’occasione di scoprire questa proposta unica!

Contattaci allo 081.184.93.728 o al 346.313.05.68 per maggiori informazioni o per prenotare una visita!

Mostra tutto

Nelle vicinanze

Trasporto pubblico Trasporto pubblico
stazione di Portici-Ercolano
stazione di Portici-Ercolano
1,2 Km
Portici Bellavista
Portici Bellavista
1,2 Km
Trasporto pubblico
80 m
Diaz - Via Roma
Diaz - Via Roma
310 m
stazione di Pietrarsa-San Giorgio a Cremano
stazione di Pietrarsa-San Giorgio a Cremano
740 m
Ricariche auto elettriche Ricariche auto elettriche
Portici Parcheggio Comunale Multipiano | EnelX
690 m
Stazione Portici Bellavista | EnelX
1,2 Km
Portici De Lauzieres | EnelX
1,9 Km
Portici Siani | EnelX
2,3 Km
Scuole Scuole
Liceo Scientifico "Silvestri" - succursale
160 m
"Francesco Saverio Nitti" Portici
240 m
Liceo Statale "Quinto Orazio Flacco"
310 m
3° Istituto comprensivo
430 m
Istituto Macedonio Melloni
500 m
Farmacia Farmacia
Farmacia
2,5 Km
Farmacia Tufarelli
3,0 Km
Ospedali Ospedali
Guardia medica
1,4 Km
AZIENDA SANITARIA LOCALE NA1 - DISTR. 52
1,9 Km
Supermercati Supermercati
Euroesse Supermercati
920 m
Euroesse
940 m
Supermercato SISA - Gruppo di Polo
2,3 Km
MD Discount
2,5 Km
Maxistore Decò
2,5 Km
Negozi Negozi
Negozi
2,2 Km
OVS
2,5 Km
Bar Bar
Bar Guida
2,8 Km
Ristoranti Ristoranti
Pizzeria da Michele
70 m
La Vineria senza Cucina
190 m
Pizzeria Salvo
680 m
Casa Marigliano
1,2 Km
Mangiamoci Su
1,2 Km
Mostra tutto

Caratteristiche

Rif.:
61133066
Piano:
1 di 2 (Piano basso)
Camere da letto:
1
Arredamento:
Assente
Condizionamento:
Autonomo
Ascensore:
No
Mostra tutto
Prezzo Prezzo
€ 130.000
Rata mutuo Rata mutuo
€ 599 / mese
Spese annue Spese annue
€ 360
Proponi il tuo prezzoProponi il tuo prezzo

Classe Energetica

G
G
G
G
G
G
G
G
G
EP globale non rinnovabile:
179.00 kW h/m² anno
EP globale rinnovabile:
179.00 kW h/m² anno
EP invernale del fabbricato:
EP estiva del fabbricato:
Anno di costruzione:
1960
Riscaldamento:
Assente

Ti interessa visionare l'immobile?

Fissa un appuntamento  Fissa un appuntamento

Richiedi informazioni

* Questi campi sono obbligatori

Calcola il tuo mutuo

Semplice e senza impegno
Anticipo

( % )
Mutuo

( % )

pochi semplici passi

inserisci i tuoi dati
Questionario completato
Grazie per aver richiesto un appuntamento senza impegno con un nostro Consulente del Credito e Assicurativo.

Hai inserito correttamente tutti i dati necessari e a breve riceverai una e-mail con un link da convalidare per inviare i tuoi dati.
Affiliato
Progetto Diaz Srls
Via Armando Diaz, 56 a/b 80055 Portici (NA)
Via Armando Diaz, 56 a/b 80055 Portici (NA)
Zona: Portici Diaz
Mostra su mappa
Affiliato
Progetto Diaz Srls
Via Armando Diaz, 56 a/b 80055 Portici (NA)

2025 Tecnocasa Franchising S.p.A. - P. IVA 08365160152 - Via Monte Bianco 60/A 20089 Rozzano (MI). Ogni agenzia ha un proprio titolare ed è autonoma. Privacy policy | Policy utilizzo | Cookie policy